Vorige | Volgende
Verkocht

Zeussingel 87L 1363TM Almere

Deze woning is verkocht

Neem contact met ons op

06-41246405

info@leukehuizen.nl

Omschrijving

Almere Poort. 2 nieuw te bouwen woonhuizen met strakke stijlvolle uitstraling, passend bij de (hoek)locatie.

Op de hoek van de Zeussingel, in het Homeruskwartier Almere Poort, is een brede hoekkavel beschikbaar voor de bouw van twee bijzondere eengezinswoningen in dezelfde stijl (Zeussingel 87 L en R)- op kavel met bouwnummer HKW358. De woningen zijn een ontwerp van Bahama architecten en krijgen een strakke, stijlvolle uitstraling, passend bij de locatie.

De architectuur is mooi op elkaar afgestemd. Met hoge ramen en gevels in baksteen, welke in overleg met de kopers wordt geselecteerd. Kenmerk van de architectuur is de zorgvuldige afwerking.

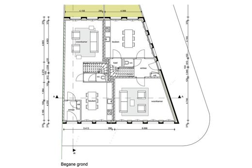
Zie de brochure voor de plattegronden.

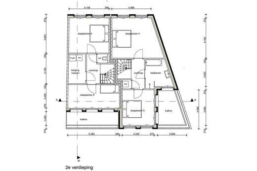
Bahama woning Zeussingel 87 L is de tussenwoning. De begane grond met een doorzon opzet is inpandig 3.60 meter hoog. Er is een kleine hal bij de entree met meterkast en ruimte voor de garderobe. De keuken zit aan de voorzijde met 2 hoge ramen naar de singel. Het woongedeelte is aan de tuinkant met 2 sets openslaande deuren naar de tuin. De tuin is bijna 15 meter lang. Achterin is ruimte voor een schuur. Woon- en eetgedeelte worden van elkaar gescheiden door de trap naar boven en een halletje met het toilet. Op de eerste verdieping 3 goede slaapkamers. Aan de masterbedroom aan de achterzijde grenst een grote inloopkast. Apart toilet. In de badkamer is ruimte voor een bad, douche en wastafel. Op de tweede verdieping nogmaals 2 mooie slaapkamers, een apart toilet en een ruime berging met plek voor wasmachine en droger. Aan de voorzijde over de gehele breedte een balkon.

Bahama L is een groot huis, maar liefst 150 m2 netto woonoppervlak (490 m3).
De woning zal worden gebouwd door Haafkes bouw onder de woningborg garantieregeling. Deze aannemer al eerder in de wijk gebouwd. De genoemde prijs van € 398.000 von is op basis van
- vloerwarming in het hele huis
- kunststof kozijnen
- exclusief keuken
- exclusief schuur in de tuin
- inclusief een stelpost voor de gevelstenen: de keuze zal samen met de kopers worden gemaakt
- goede stelposten voor tegelwerk en sanitair
- inclusief aanleg terras op de tweede verdieping
- inclusief 3 zonnepanelen.

De omgevingsvergunning is al verleend. Aanpassingen in de indeling van het huis zijn wel nog mogelijk.

Bij belangstelling adviseren wij u om eerst te gaan kijken op de locatie.
De Zeussingel ligt centraal in het Homeruskwartier en heeft een breed profiel. In dit gedeelte van de singel wordt huis aan huis individueel onder architectuur gebouwd.

De bushalte Homeruskwartier West ligt op loopafstand, het is 3 haltes naar het NS station Almere Poort, of je steekt binnendoor met de fiets. De singel geeft een lange zichtlijn naar het Pampushout. Even verderop ligt de Homerusmarkt met kleine zaakjes en horeca, op de hoek van de bushalte zitten een aantal horeca (afhaal) zaken en wat kleine bedrijvigheid, en in het Columbuskwartier de AH XL supermarkt met ook een bloemist en een slijterij.
Bij de Homerusmarkt is de bouw van een PLUS supermarkt in voorbereiding.
In het stadsdeel zijn opvang, scholen en zorgvoorzieningen ruim aanwezig. Aan de andere zijde van het NS station ligt de topsporthal en een groot zwembad met daarboven nog een sportzaal.

Het Pampushout, IJmeer, de stranden van Duin geven het stadsdeel een mooie mix tussen stad, natuur en ruimte voor comfortabel en ontspannen wonen.

Kenmerken

Overdracht

Aanvaarding
in overleg

Bouw

Soort woning
eengezinswoning
Type woning
tussenwoning
Soort bouw
nieuwbouw
Bouwjaar
2018
In aanbouw
nee

Details

Voorzieningen
glasvezel kabel, mechanische ventilatie, tv kabel
Bouwrijpe bouwgrond
nee
Ligging
in woonwijk
Permanente bewoning
ja
Daktype
plat dak

Oppervlakten en inhoud

Woonoppervlakte
150 m²
Oppervlakte overige functies
1 m²
Inhoud
490 m³

Indeling

Aantal kamers
6
Aantal slaapkamers
5
Aantal etages
3
Aantal badkamers
1
Badkamervoorzieningen
douche, ligbad, wastafel

Isolatie en verwarming

Soort verwarming
stadsverwarming
Warmwater installatie
centrale voorziening

Kadastrale gegevens

Eigendomssituatie
volle eigendom

Buitenruimte

Tuintype(n)
achtertuin
Hoofdtuin type
achtertuin
Hoofdtuin oppervlakte
67 m²
Hoofdtuin achterom
ja
Ligging hoofdtuin
noord
Totale oppervlakte
67 m²

Garage

Garagesoorten
geen garage

Parkeergelegenheid

Faciliteit
openbaar parkeren

Omschrijving

Almere Poort. 2 nieuw te bouwen woonhuizen met strakke stijlvolle uitstraling, passend bij de (hoek)locatie.

Op de hoek van de Zeussingel, in het Homeruskwartier Almere Poort, is een brede hoekkavel beschikbaar voor de bouw van twee bijzondere eengezinswoningen in dezelfde stijl (Zeussingel 87 L en R)- op kavel met bouwnummer HKW358. De woningen zijn een ontwerp van Bahama architecten en krijgen een strakke, stijlvolle uitstraling, passend bij de locatie.

De architectuur is mooi op elkaar afgestemd. Met hoge ramen en gevels in baksteen, welke in overleg met de kopers wordt geselecteerd. Kenmerk van de architectuur is de zorgvuldige afwerking.

Zie de brochure voor de plattegronden.

Bahama woning Zeussingel 87 L is de tussenwoning. De begane grond met een doorzon opzet is inpandig 3.60 meter hoog. Er is een kleine hal bij de entree met meterkast en ruimte voor de garderobe. De keuken zit aan de voorzijde met 2 hoge ramen naar de singel. Het woongedeelte is aan de tuinkant met 2 sets openslaande deuren naar de tuin. De tuin is bijna 15 meter lang. Achterin is ruimte voor een schuur. Woon- en eetgedeelte worden van elkaar gescheiden door de trap naar boven en een halletje met het toilet. Op de eerste verdieping 3 goede slaapkamers. Aan de masterbedroom aan de achterzijde grenst een grote inloopkast. Apart toilet. In de badkamer is ruimte voor een bad, douche en wastafel. Op de tweede verdieping nogmaals 2 mooie slaapkamers, een apart toilet en een ruime berging met plek voor wasmachine en droger. Aan de voorzijde over de gehele breedte een balkon.

Bahama L is een groot huis, maar liefst 150 m2 netto woonoppervlak (490 m3).
De woning zal worden gebouwd door Haafkes bouw onder de woningborg garantieregeling. Deze aannemer al eerder in de wijk gebouwd. De genoemde prijs van € 398.000 von is op basis van
- vloerwarming in het hele huis
- kunststof kozijnen
- exclusief keuken
- exclusief schuur in de tuin
- inclusief een stelpost voor de gevelstenen: de keuze zal samen met de kopers worden gemaakt
- goede stelposten voor tegelwerk en sanitair
- inclusief aanleg terras op de tweede verdieping
- inclusief 3 zonnepanelen.

De omgevingsvergunning is al verleend. Aanpassingen in de indeling van het huis zijn wel nog mogelijk.

Bij belangstelling adviseren wij u om eerst te gaan kijken op de locatie.
De Zeussingel ligt centraal in het Homeruskwartier en heeft een breed profiel. In dit gedeelte van de singel wordt huis aan huis individueel onder architectuur gebouwd.

De bushalte Homeruskwartier West ligt op loopafstand, het is 3 haltes naar het NS station Almere Poort, of je steekt binnendoor met de fiets. De singel geeft een lange zichtlijn naar het Pampushout. Even verderop ligt de Homerusmarkt met kleine zaakjes en horeca, op de hoek van de bushalte zitten een aantal horeca (afhaal) zaken en wat kleine bedrijvigheid, en in het Columbuskwartier de AH XL supermarkt met ook een bloemist en een slijterij.
Bij de Homerusmarkt is de bouw van een PLUS supermarkt in voorbereiding.
In het stadsdeel zijn opvang, scholen en zorgvoorzieningen ruim aanwezig. Aan de andere zijde van het NS station ligt de topsporthal en een groot zwembad met daarboven nog een sportzaal.

Het Pampushout, IJmeer, de stranden van Duin geven het stadsdeel een mooie mix tussen stad, natuur en ruimte voor comfortabel en ontspannen wonen.

Kenmerken

Overdracht

Aanvaarding
in overleg

Bouw

Soort woning
eengezinswoning
Type woning
tussenwoning
Soort bouw
nieuwbouw
Bouwjaar
2018
In aanbouw
nee

Details

Voorzieningen
glasvezel kabel, mechanische ventilatie, tv kabel
Bouwrijpe bouwgrond
nee
Ligging
in woonwijk
Permanente bewoning
ja
Daktype
plat dak

Oppervlakten en inhoud

Woonoppervlakte
150 m²
Oppervlakte overige functies
1 m²
Inhoud
490 m³

Indeling

Aantal kamers
6
Aantal slaapkamers
5
Aantal etages
3
Aantal badkamers
1
Badkamervoorzieningen
douche, ligbad, wastafel

Isolatie en verwarming

Soort verwarming
stadsverwarming
Warmwater installatie
centrale voorziening

Kadastrale gegevens

Eigendomssituatie
volle eigendom

Buitenruimte

Tuintype(n)
achtertuin
Hoofdtuin type
achtertuin
Hoofdtuin oppervlakte
67 m²
Hoofdtuin achterom
ja
Ligging hoofdtuin
noord
Totale oppervlakte
67 m²

Garage

Garagesoorten
geen garage

Parkeergelegenheid

Faciliteit
openbaar parkeren

Foto's